Напишите нам
+7 (912) 722-95-15
О компании
Общая информация
Производство
Контакты
Продукция
Оцилиндрованное бревно
Пиломатериалы
Рубленые дома
Профилированный брус
Клеёный брус
Бани
Пеллеты
Другие разделы
Строительство
Проекты
Фотогалерея
Прайс-лист
Предварительный расчет
Дом 280мм
Диаметр бревна: 280мм
Стоимость
: 420 900 рублей.
1 этаж
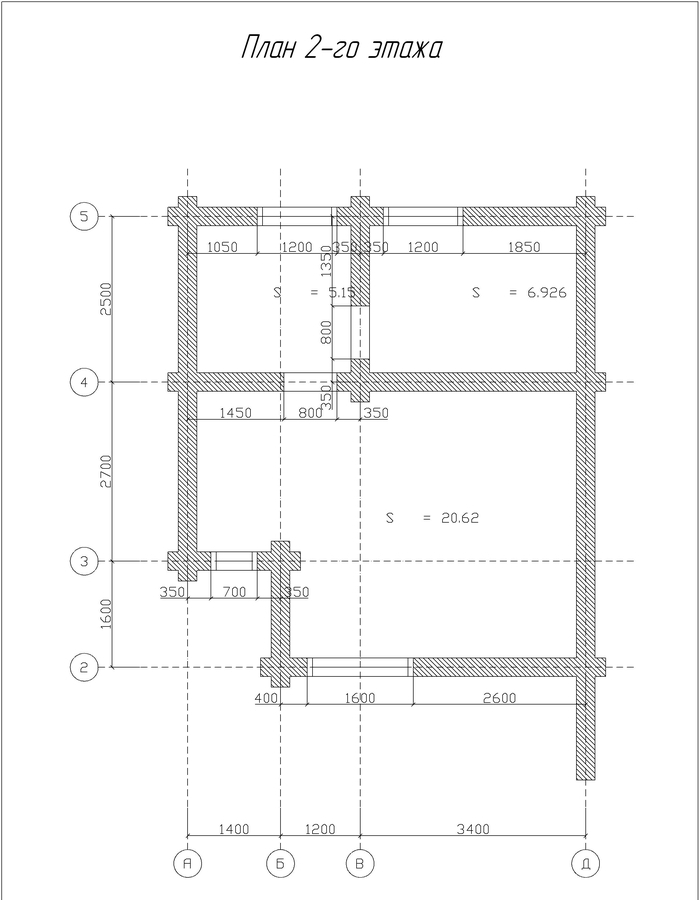
2 этаж
Вид 1
Вид 2